Skip to main content
Scroll Top
Ponedeljak - Petak
8.00 - 16.00
Telefon
014 220 647
Telefon
014 220 647
Ponedeljak - Petak
8.00 - 16.00
Menu
Close
Početna
Građevinsko preduzeće
Reference – Projektni biro
Nekretnine
Zaposleni
Kontakt
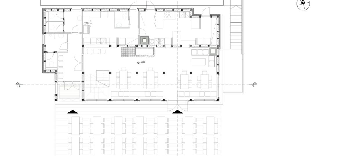
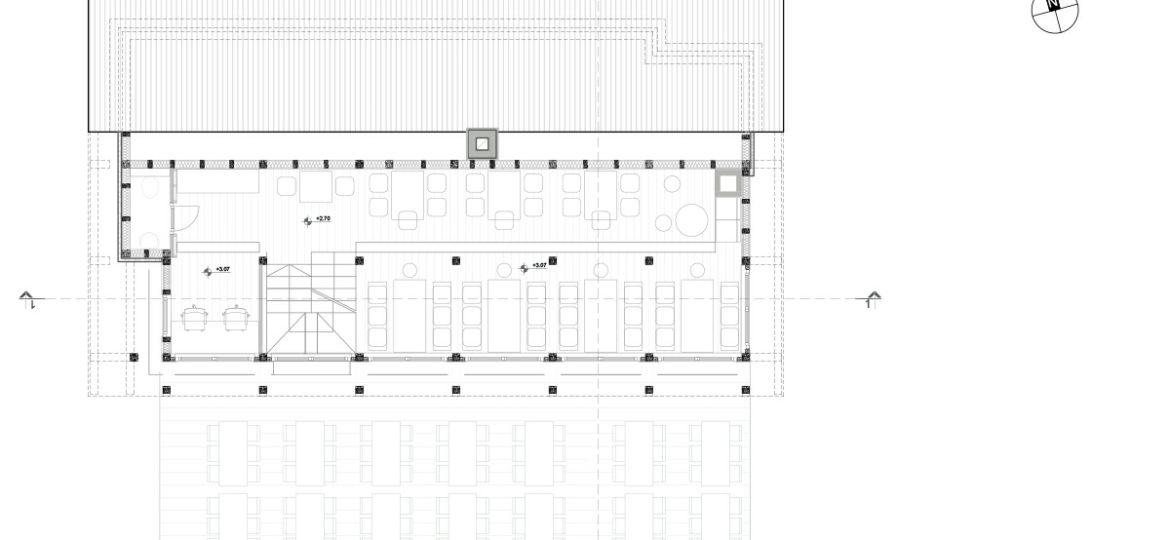
Upravna zgrada skijališta sa uslužno-ugostiteljskim sadržajima – “DIVČIBAR”, Divčibare
Home
Projektni biro
Javni objekti
Upravna zgrada skijališta sa uslužno-ugostiteljskim sadržajima – “DIVČIBAR”, Divčibare
AUTOR
Milan Jakić, dipl. inž. arh.
ODGOVORNI PROJEKTANT
Milan Jakić, dipl. inž. arh.
SARADNICI
Andrijana Maksimović dipl. inž. arh., Lazar Ćirić dipl. inž. arh.
INVESTITOR
Grad Valjevo
BRUTO POVRŠINA
260 m²
PROJEKAT
2017-2019
REALIZACIJA
2019-2020
← Nadstrešnica ispred dolaznog terminala Aerodroma Nikola Tesla, Beograd
Reference
Nadstrešnica ispred dolaznog terminala Aerodroma Nikola Tesla, Beograd
ABC test, Valjevo, dogradnja poslovnog objekta
CRKVA NA POVLENU _ VALJEVO
KONAK NA POVLENU _ VALJEVO